Multilocale in vendita

Roma, Via Vitellia - Monteverde Nuovo
Informazioni in agenzia
6 locali 6 locali
430 Mq 430 Mq
5 bagni 5 bagni

Multilocale in vendita

Roma, Via Vitellia - Monteverde Nuovo

Descrizione annuncio

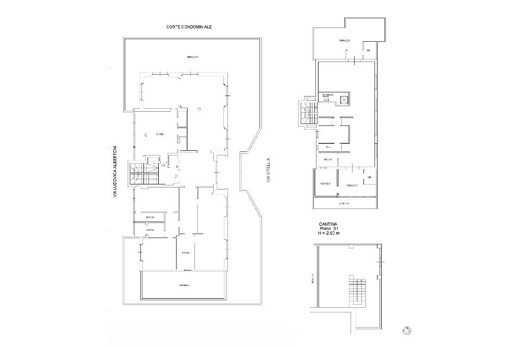
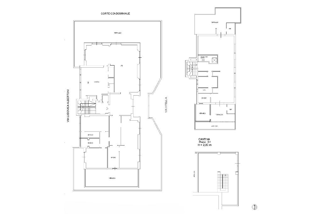
Via Vitellia - In una delle vie più esclusive del quartiere Monteverde, aperto sulla magnifica Villa Doria Pamphili, proponiamo in vendita un attico e super attico con vasto terrazzo panoramico di rara eleganza, caratterizzato da grande luminosità, silenzio e affacci unici sul verde e sulla cupola di San Pietro.

Questa proprietà, concepita dal riconosciuto architetto Michele Busiri Vici, si sviluppa su due livelli, caratterizzati da ambienti ampi e proporzionati, volti a valorizzare al massimo luce naturale e vivibilità. Gli interni sono impreziositi da una selezione di materiali di alto pregio, che conferiscono all’abitazione un’identità intemporale di forte rappresentanza.

Si accede all’appartamento con un ascensore che apre privatamente in casa. L’arrivo accoglie su un elegante ingresso e una scala di marmo che separano la zona giorno dalla zona notte. La prima si compone di un doppio salone di ricevimento con accesso al terrazzo impreziosito da un parquet di quercia francese a tavole larghe e ampie finestre panoramiche che incorniciano il parco e assicurano luce naturale durante l’intero arco della giornata. La sala da pranzo, aperta e luminosa, è affiancata da una grande cucina separata, ristrutturata in rovere e marmo.
Sul medesimo piano si sviluppa la zona notte, composta da tre camere da letto finemente arredate, con portefinestre che accompagnano al terrazzo, regalando luce, privacy e affacci nel verde. I tre bagni, di cui due en suite, rifiniti con materiali di pregio, sono impreziositi da lavabi antichi in pietra naturale di tradizione romana. Tutte le camere e corridoi sono muniti di grandi armadi a muro. Completa il livello un terrazzo panoramico che circonda l’appartamento garantendo un'esposizione a 360° di luce e viste suggestive, nel quale, su parte del terrazzo, vi è una veranda vetrata di 47 mq.
Ristrutturato integralmente nel 2017, il livello è stato migliorato con infissi ad alte prestazioni e impianto di climatizzazione a doppio flusso.

Il secondo livello è dedicato agli ospiti e al servizio: l’ingresso apre su uno spazioso salone, concepito come ambiente autonomo e riservato, con cucina indipendente e uscita sulla terrazza con vista sul parco. La spaziosa camera da letto, con cabine armadio e bagno en suite, apre su una terrazza con veranda esterna. Conclude il livello una camera di servizio con bagno privato.

La proprietà è comprensiva di una cantina di circa 60 mq e un box auto per due vetture raggiungibile tramite ascensore, caratterizzato da saracinesca automatica in acciaio, rappresentando un plus raro e strategico, capace di incrementare significativamente comfort abitativo e valore patrimoniale dell’immobile.

Chiamaci subito per fissare un appuntamento!

Oltre a cercare casa vuoi anche vendere o affittare il tuo immobile? Contattaci per organizzare una valutazione. Ti garantiamo una stima precisa e di mercato.

Mostra tutto

Nelle vicinanze

Trasporto pubblico Trasporto pubblico
Baldo degli Ubaldi
Baldo degli Ubaldi
2,4 Km
Valle Aurelia
Valle Aurelia
2,6 Km
Roma Trastevere
Roma Trastevere
2,0 Km
stazione di Roma San Pietro
stazione di Roma San Pietro
2,1 Km
Gianicolense/Colli Portuensi
Gianicolense/Colli Portuensi
240 m
Ricariche auto elettriche Ricariche auto elettriche
Roma Gregorio VII | EnelX
1,7 Km
Crowne Plaza Rome-St. Peter's
1,8 Km
Eneldrive Stazione Roma S.Pietro
2,1 Km
Eneldrive Park Trastevere ATAC
2,4 Km
Supermercato PIM Newton
2,4 Km
Scuole Scuole
Istituto scolastico "Anna Micheli"
120 m
Scuola De André
710 m
Scuola elementare Giorgio Franceschi
850 m
Liceo scientifico Giovanni Battista Morgagni
930 m
Scuole
950 m
Farmacia Farmacia
Farmacia
510 m
Farmacia Pharma Experience Monteverde
670 m
Farmacia Sant'Elena
700 m
Parafarmacia doc*Fonteiana
1,0 Km
doc*Barrili
1,5 Km
Ospedali Ospedali
Clinica Città di Roma
1,2 Km
San Camillo-Forlanini
1,6 Km
Salvator Mundi international Hospital
1,7 Km
Ares 118
1,7 Km
Ospedale Carlo Forlanini
1,8 Km
Supermercati Supermercati
Simply
290 m
Todis
500 m
Elite
820 m
doc*Fonteiana
1,0 Km
InCoop
1,2 Km
Negozi Negozi
Antico Forno Cotugno
510 m
Pasta All'Uovo
540 m
Forno Marchetti
1,3 Km
Trevisiol
1,3 Km
Panificio New
1,4 Km
Bar Bar
Bar
1,2 Km
Bar
1,4 Km
Quattro Venti
1,4 Km
Bar Marcucci
1,5 Km
Lo Zio Caffè
1,5 Km
Ristoranti Ristoranti
Mucca Pazza
310 m
Trattoria Da Cesare
320 m
La gatta mangiona
530 m
lo spuntino
610 m
Thai Inn
610 m
Mostra tutto

Caratteristiche

Rif.:
61183290
Piano:
5 di 6 con ascensore (Piano attico)
Box:
1
Terrazzi:
3
Camere da letto:
4
Arredamento:
Assente
Mostra tutto
Prezzo Prezzo
Informazioni in agenzia
Proponi il tuo prezzoProponi il tuo prezzo

Classe Energetica

G
G
G
G
G
G
G
G
G
Riscaldamento:
Centralizzato
Tipo impianto:
A radiatori
Tipo alimentazione:
Metano

Ti interessa visionare l'immobile?

Fissa un appuntamento  Fissa un appuntamento

Richiedi informazioni

Clicca su Leggi per aprire l'informativa
* Questi campi sono obbligatori
Affiliato
Monteverde Ozanam Srl
Via Federico Ozanam, 57 00152 Roma (RM)

Il nostro staff


  • Andrea Melegoni
    Affiliato

  • Elisa Mura
    Coordinatrice

  • Francesco Perfetti
    Collaboratore

  • Stefano Russi
    Collaboratore

  • Arianna Sabbadini
    Coordinatrice

  • Gianluca Stanzione
    Collaboratore
Via Federico Ozanam, 57 00152 Roma (RM)
Zona: Monteverde-Ozanam-Jenner
Mostra su mappa
Orari: Dal lunedì al venerdì dalle 09:00 alle 20:00 - Sabato dalle 09:00 alle 18:00
Affiliato
Monteverde Ozanam Srl
Via Federico Ozanam, 57 00152 Roma (RM)

2026 Tecnocasa Franchising S.p.A. - P. IVA 08365160152 - Via Monte Bianco 60/A 20089 Rozzano (MI). Ogni agenzia ha un proprio titolare ed è autonoma. Privacy policy | Policy utilizzo | Cookie policy